Soda Springs | Tahoe Donner Area Info | Donner Summit > Hikes | Donner Lake | Truckee | Tahoe City | Tahoe - Donner Area Map | Reno | 2009 Sierra Club Trips
Under Construction

Contents - Directions | Accommodations | Contacts | Transportation | Donner Pass | Hikes/Trails | Sierra Club Lodge Trips | Weather | News | Links
Main Clair Tappaan Lodge Page www.sierraclub.org/outings/lodges/ctl/

Clair Tappaan Lodge (CTL) is a rustic mountain lodge on old Hwy 40 at the top of Donner Pass. Built by Sierra Club volunteers in the 1930s, the lodge is an excellent home base for year-round recreation.
It is 0.7 mi. from the Sugar Bowl Ski Area.
1.5 mi. from the Pacific Crest Trail (PCT) at Donner Summit.
1.7 miles from Royal Gorge ("North America's largest cross country ski resort")

Directions:
I-80 exit 174-Soda Springs/Norden 12 mi. west of Truckee. Go 2.4 miles east on Donner Pass Rd. (old U.S. 40).
19940 Donner Pass Road (old Hwy 40), Norden/Soda Springs. It is just before the Cal Lodge.
See transportation below for taxi and shuttle information.
It is a little less than 1 hour from the Reno Airport. [Google directions from the airport.]
Directions at Sierra Club CTL site.

Regional Map and directions

Donner Summit
Expand | Mileage to Lake Tahoe etc. | Truckee | Directions to Kings Beach, Carnelian Bay and Mt. Rose
Topo Maps: Flora Lake, Donner Pk. - Mt. Judah, Castle Peak, Others

clair tappaan lodge, Rose family cabin, Hutchinson Lodge, Cal Lodge, Hidelman Lodge, German club
There is a small parking area below the lodge. The steep path of about 500' up to the Lodge starts here.
The main parking area is across from the Cal Lodge.
There is a new (2008-09) drop-off area accessable by driving up past the Cal Lodge.

Contact Information
- Official Web Site: ctl.sierraclub.org
Brochures
P.O. Box 36, Norden, CA 95724
phone: (530) 426-3632 or (800) 679-6775, (530) 414-1364 (emergency cell phone)
Lodge Manager: Peter Lehmkuhl
clair.tappaan@yahoo.com
ctl@sierraclub.org

CTL at TahoesBest

Accommodations: - Rooms
All accommodations are in bunk beds equipped with mattresses (bring your own sleeping bag or bedding). A variety of room types and sizes are available. Restroom and shower facilities are shared, with two men's and two women's bathrooms (bring your own towel). See Accommodations at the CTL web site.
images/cubicle   Family Room   Women's Dorm   Men's Dorm
Click for larger versions
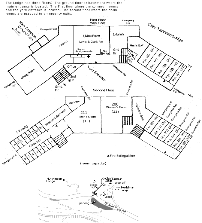
CTL floor Plan
Ground and 1st floor common areas, 2nd and 3rd floor.

Living Room, Library, and Dining Room
   

Copy of Information Sheet Available at CTL office.

UNDER COVERS; A shared experience; Clair Tappaan Lodge - SF Chronicle, Jan. 11, 2007
Slide Show about life at CTL by Richard Boyden
What people like:
Living Room, Library, Sauna
Beautiful setting, clean air, starry nights, close recreation

What they don't like:
Cramped cubicles and dorms (2 person twin or double beds)
No mattress covers
No storage (shelves, dresser) in men's dorm
No ladder for top (3rd) bunk in women's dorm
Noise in the dining room when full

Hikes/Trails at the Donner Summit Trails Page.

See the Clair Tappaan History Page

Daily Schedule:

7:00 am Setup for Breakfast (2-3 volunteers)
7:30 am Make lunches in Living Room
8:00 am Breakfast
8:30 am Kitchen cleanup (2-3 volunteers/day)
5:30 pm Set up for dinner (2-3 volunteers)
6:00 pm Dinner
  (was 5 on Sunday but will change to 6 in '08)
6:30 pm Kitchen cleanup
Other Activities and Sights:
Tahoe Web site
Perseid Meteor Shower Information (Aug. 12 every year)

Other Contact Info:
Tahoe National Forest:
Big Bend Visitors Center
49685 Hampshire Rocks Road (old Hwy 40)
530.426.3609

Emigrant Trail Museum at Donner Memorial State Park
See Free Day Activities

Placer County Sheriff: (530) 886-5375

Nevada County Sheriff: (530) 582-7842

Tahoe Forest Hospital (530) 587-6011 Emergency - 911 alt. (530) 582-3206 911
10121 Pine Avenue, Truckee
Map

Truckee Fire Protection District - 530-582-7850
Soda Springs Station: (530) 426-3000

Emergency Services in the Tahoe Area

Transportation:
Most of the information below was updated in Aug. 2009. Check the CTL web site for current rates.

See Also: Directions at Sierra Club CTL site and directions with map above.
Reno Airport: - From the airport you need to go to Truckee (1 hr) then take a Taxi (20 min) to Donner Summit (Clair Tappaan Lodge - 2.4 miles east Soda Springs exit on I-80).

See: Transportation at the airport web site.
The shuttles and buses all drop off at the Truckee Train station.

North Lake Tahoe Express (www.northlaketahoeexpress.com) - (866) 216-5222 - $40 for 1 passenger, $75 for 2, $80 for 3) (round trip $75) from Reno Airport.
  Route 2 (Green) - leaves Airport: 8 AM, 11:15 AM, 1:00 PM, 3:15 PM, 7:30 PM, 11 PM (go to web and click "Make a Reservation" for current info.)

Greyhound (800) 231-2222
  from Downtown Reno (155 Stevenson St) to Truckee $12.50
  leaves 6:30 am. and 3:30 pm as of Sep., 2009

Amtrak - 800 872-7245, (775) 329-8638
  Downtown Reno (RNO) to Truckee (TRU) (one train leaves RNO at noon) $15
2007
Note: There is an Amtrak/Capitol Corridor Bus schedule at the Truckee train station (Visitors Center) which lists a bus 3 times a day from Reno at 8:25 AM, 11:40 AM, 4:50 PM and from Truckee at 9:20, 12:35 and 5:50, which stops at the Donner Summit Lodge near the I-80 exit 174, 2.5 mi. from CTL. In July 2007 I asked a bus driver if he stoped at Soda Springs and he said yes. However neither the visitors center, Amtrak or Capitol Corridor acknowledge such a service. You can try 800 USA-RAIL, but they said I needed to call Capitol Corridor Bus Svc., 877 974-3322, and they referred me back to Amtrak.

Truckee North Tahoe Transportation Management Association (TMA) (www.LakeTahoeTransit.com) - (530) 581-3922

Taxi's Truckee: ($3-4/mi - abt. $40-$55)
High Sierra (530) 412-1927 - Special Sierra Club rate $30, contact Saer
Eco-Taxi (530) 386-3836 $40
Mountain Cab (530) 582-5828 $55

In the winter they have a free shuttle bus to the Sugar Bowl parking lot and another one you catch from the parking lot to Cal Lodge. The schedules are changing all the time so when you call they will give you all of the info.

Lodging in Old Truckee near Train/Shuttle stops at the Truckee Page.

From San Francisco you can take BART to Rochmond and Amtrak to Soda Springs. You go by train to Sacramento then get on a Capitol Corridor bus (with your Amtrak ticket) which will drop you at the Lodge by Exit 174 (Soda Springs). See San Francisco transportation at the Tahoe Page.

Distances:


Petroglyphs: 2 mi.
Sacramento Airport: 98 mi. 1:40
San Francisco Airport: 190 mi. 3 hrs.
Distances from Clair Tappaan Lodge
Location dist
(mi)
time
Reno Airport 50 52
Truckee 14 16
Tahoe City 27 36-40
Incline Village, NV 30 50
Sand Harbor 39 55
Garwood's Carnelian Bay 32 45
Stateline, NV (S. Lake Tahoe) 56 1:20
Virginia City 72 1.5 hr.
Trailheads
PCT - Donner Pass Rd 1.4
PCT - I-80 5 8
Loch Leven L. 9 14
Emerald Bay Lake Tahoe 42 1:05
Mt. Rose 40 1 hr
PCT - Pacific Crest Trail

Note: Traffic may be bad in July and Aug around Lake Tahoe so times may be longer.

More information at: Truckee Visitors Center (530) 587-0476 Truckee.com
10065 Donner Pass Rd. at the Train Station in Old Truckee (map)
North Lake Tahoe Express, Tahoe Area Regional Transit (TART), Greyhound and Amtrak all stop here.

Lake Tahoe:
Transportation from Truckee to North Lake Tahoe is available from:
Tahoe Area Regional Transit (TART)..(530) 550-1212 800-736-6365
North Lake Tahoe Express (www.northlaketahoeexpress.com) - (530) 581-3922

See: transportation at the Tahoe page.
Transportation at the Reno Airport Page.
Reno Car Rental in Travel

Hotels:
Truckee Hotels

Shopping and Gas see Donner Summit page

Programs:
GateWay Mountain Center - School Programs

Financial situation:
Over the last decade or so, Clair Tappaan Lodge (CTL) has lost money; sometimes a little, sometimes a lot. Recently the loss has been on the order of $100,000 per year. In 2004 the Sierra Club Board of Directors threatened to sell the lodge. They turned over day-to-day management responsibility to an outside company, Miramar. As part of the 2005 budget, the Board passed a resolution requiring that by September 30, 2005, CTL supporters get the lodge well on the way to break-even operation and raise $100,000 in donations. By the September 30, 2005 deadline $126,305 had been raised, 25% more than the challenge.

The Board of Directors also challenged the Lodge to increase its occupancy to the breakeven point in 2006. Historically the Lodge has attracted 11,000 visitors per year, resulting in a loss of approximately $100,000. In 2005, occupancy was ~ 12,000 visitors. Breakeven is between 14,000 and 15,000.

In 2006 the loss was reduced to around $50,000 and a fund raiser came up with something around $15,000.

In 2007-08, three bold initiatives toward a paradigm shift from "snow lodge to all-year lodge" are bearing fruit in the drive to make CTL break even. The appeal to schools to bring their students for environmental education, recreation and science programs continues. A relationship has been established with Elder Hostel, and the three 2008 summer inter-generational programs are now filling up.

Over $20,000 from the 2008 fundraiser allowed them to meet their break even deadline by the end of the 3rd quarter.

In late 2006 the finance committee proposed selling about 232 acres around the Warming Hut which could bring in $430,000, of which $100,000 would be earmarked for Clair Tappaan Lodge needs. The total acerage around CTL is about 90 acres.
At the end of 2007 they sold 23 acres around the Warming Hut to Donner SKi Ranch which has a history of buying historic properties for restoration and preservation. The Club still has access to the land pursuant to the terms of the conservation easement with the Truckee Donner Land Trust.
See the Clair Tappaan History Page
See: Support Clair Tappaan Lodge


Links:
Area Activities
Donner Summit Information
Lake Tahoe Information
Truckee Visitors Center (530) 587-0476 Truckee.com
Hikes
Emergency Services in the Tahoe Area
I-80 in the Sierra Nevada (Soda Springs, Donner Lake, Truckee, Gas Prices)
Floor Plan rooms
Floor Plan Common Area
UNDER COVERS; A shared experience;Clair Tappaan Lodge - SF Chronicle January 11, 2007

Return to Tahoe

last updated Aug 2009